Goosepool Drive, Eaglescliffe

Under Offer
Guide Price £257,500 (Freehold)

3 2 1
Situated at the head of a quiet cul de sac, this spacious three bedroom semi detached home was built by Taylor Wimpey and offers an excellent opportunity for a variety of buyers.



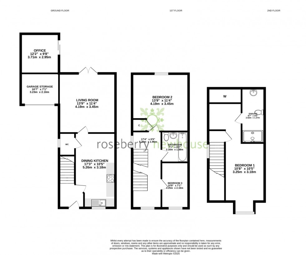
Set over three floors and boasting generous proportions throughout, the property enjoys a prime position close to local amenities, transport links and schools. The accommodation briefly comprises an entrance vestibule and a bright, well presented breakfast kitchen fitted with cream shaker style units, wood effect worktops, integrated cookware, a freestanding fridge/freezer, integrated dishwasher & washing machine. To the rear, the attractive lounge features French patio doors that open directly onto the garden, creating a lovely space for relaxing or entertaining. A useful WC completes the ground floor.



The first floor hosts a spacious double bedroom, a modern three piece family bathroom and a charming third bedroom with decorative wall panelling. The entire top floor is dedicated to an impressive principal suite, complete with a generous double bedroom, dressing area with fitted storage and a contemporary shower room.

Outside, the property offers a tandem driveway, a neat lawned front garden and a single garage. The garage has been thoughtfully partitioned, providing storage at the front and a highly functional space at the rear, currently used as a home office but perfect for a playroom, gaming room, workspace or even a home bar. The rear garden is laid to lawn and enjoys a sunny west facing aspect, making it ideal for outdoor dining and relaxation.



A fantastic home in a sought after location, ready to impress from the moment you step inside.
  • Council Tax Band: D
  • Three Bedroom Semi-Detached House
  • Taylor Wimpey Built
  • West Facing Rear Garden
  • Partially Converted Garage - Multi-Functional Space
  • Modern Interior
  • Family Bathroom & Principal En-Suite
  • Cul-De-Sac Setting
Floorplan for Eaglescliffe
EPC Graph for Eaglescliffe

Calculate Your Stamp Duty

£

Results

Stamp Duty To Pay:

Effective Rate:

Tax Band % Taxable Sum Tax
Similar Property

Get an instant online valuation

Find out how much your property is worth