St. Georges Gate, Middleton St. George

Under Offer
Guide Price £395,000 (Freehold)

4 3 3
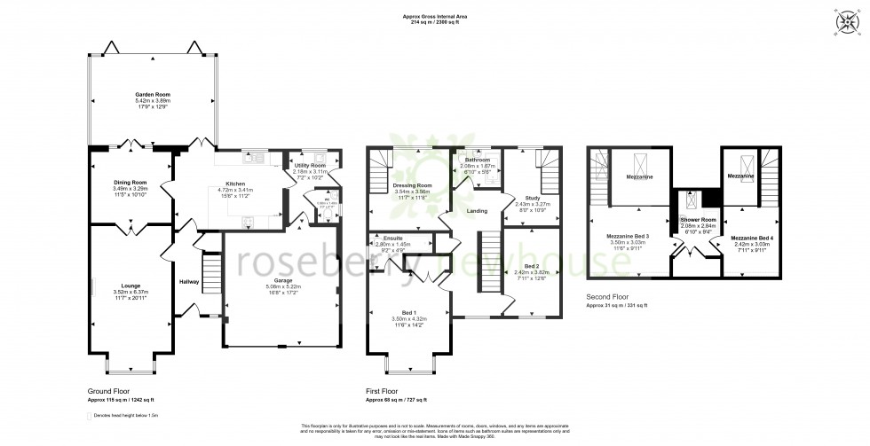
Situated within the highly sought-after St. Georges Gate development in Middleton St. George, this beautifully presented 4-bedroom, three-storey detached home offers an exceptional blend of modern living, energy efficiency and stylish design. Built by Yuill Homes in 2003 to the popular “Evesham” layout, the property has been meticulously maintained and upgraded to provide both comfort and sustainability. A key feature of this impressive home is its eco-conscious setup, including solar panels with battery storage, helping to significantly reduce running costs. The primary bedroom also benefits from its own air conditioning unit, ensuring year-round comfort. Inside, the property boasts generously proportioned rooms with contemporary décor throughout. The welcoming entrance hallway leads to a spacious living room with a front aspect boxed bay window, creating a bright and relaxing setting for everyday life. Double doors connect to the formal dining room, which in turn flows through French doors into a rear garden room fitted with an air source heating unit and bi-folding doors— perfect for entertaining in all seasons. The stylish “Shaker”-style kitchen in light grey tones features high-quality appliances and ample worktop space. Adjacent is a practical utility room, cloakroom/WC and an internal access door to the double garage.

The light-filled first floor offers a superb primary bedroom with boxed bay window, fitted storage, air conditioning and a private en-suite shower room. A spacious second bedroom sits to the front, served by a sleek modern family bathroom with contemporary tiling. Bedrooms three and four are uniquely designed with versatile mezzanine levels, offering options for dressing rooms, studies, playrooms or guest suites. A Jack and Jill shower room links these upper floor rooms. Outside, the property continues to impress with an open outlook onto a greenbelt area and low-maintenance, well-kept gardens. The front features a lawn with shrub borders and pathway, while the enclosed rear enviable south westerly facing garden is beautifully landscaped with a lawn and paved patio terrace — ideal for outdoor dining with friends and family. A double driveway and integral double garage provide ample parking. Combining flawless presentation with energy-saving features and flexible living space, this is an ideal home for families and professionals seeking quality and convenience in a prime residential location.
  • Solar panels with battery storage for reduced energy costs
  • Air-conditioned primary bedroom with en-suite
  • Spacious living room with bay window
  • Garden room with air source heating for year-round use
  • Contemporary Shaker-style kitchen with quality appliances
  • Versatile mezzanine bedrooms ideal for dressing room/study/playroom
  • Modern Jack & Jill shower room plus family bathroom
  • Immaculately presented across all three floors
  • Landscaped rear garden with patio for entertaining
  • Double garage and driveway parking for two cars
Floorplan for Middleton St. George, Darlington, Durham
EPC Graph for Middleton St. George, Darlington, Durham

Calculate Your Stamp Duty

£

Results

Stamp Duty To Pay:

Effective Rate:

Tax Band % Taxable Sum Tax

Get an instant online valuation

Find out how much your property is worth