Sybilla Grove, Yarm

For Sale
Guide Price £495,000 (Freehold)

4 2 2
Positioned on a corner plot and within the desired Conyers Green development, this attractive family home is one of only a handful built by Bellway Homes. Constructed to the 'Sandringham' design and within convenient access to several Schools and Yarm Rail Station.



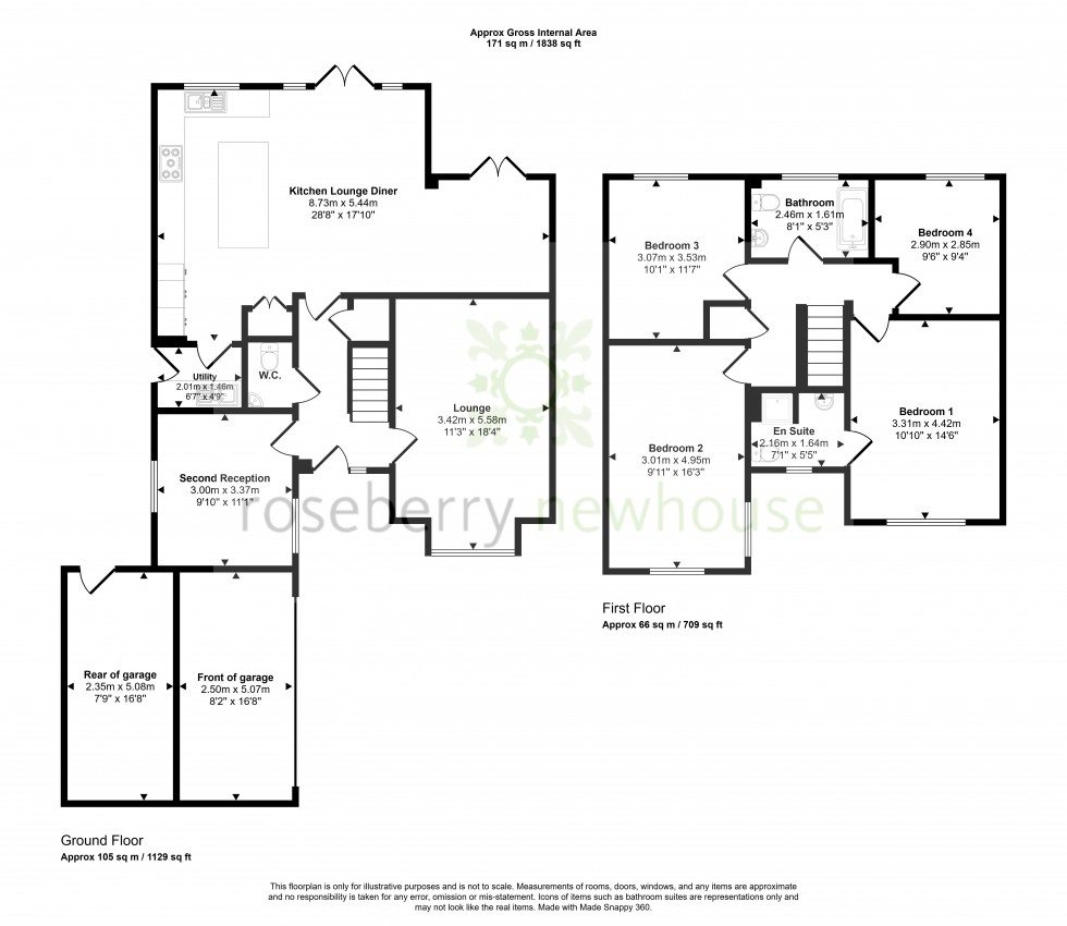
In brief, the accommodation comprises: A welcoming entrance hallway complete with decorative wall panelling, a study / playroom, W/C and a generous bay fronted lounge. The real heart of the home is the exceptional rear family hub which spans the full width of the property as a breakfast kitchen, dining and living space. The kitchen area features a range of gloss base/wall units, complete with integrated AEG cookware, inset dishwasher, fridge/freezer and a central Island. Additional features include granite overlay work surfaces, LED plinth lighting, Karndean flooring, underfloor heating and French patio doors which lead out to the rear garden. Accessed off the kitchen area is a useful utility room. To the first floor there are four double bedrooms, with the principal bedroom benefitting from an en-suite shower room. Completing the first floor is a stylish part-tiled three piece family bathroom. Externally, an extensive block paved driveway provides off street parking which leads to a double garage, whilst the rear garden has been landscaped and features paved seating areas and a low maintenance synthetic lawn. The detached double garage has been modified and now features a room that is currently used as a 'Salon' and is accessed via a UPVC door from the rear garden. The front part of the garage is used for storage and features an electric roller door.
  • Council Tax Band: F
  • Four Double Bedrooms
  • Rear 'Family Hub' - Kitchen / Dining / Living Space
  • Bay Fronted Lounge & Second Reception Room
  • Pristine Family Bathroom & Shower Room
  • Upgraded Features
  • Landscaped Rear Garden - Paving Area / Synthetic Lawn
  • Partial Garage Conversion - Functional Room & Storage
  • Driveway Parking For Several Vehicles
  • Corner Plot
  • Walking Distance Of Schools & Yarm Train Station
Floorplan for Yarm
EPC Graph for Yarm

Calculate Your Stamp Duty

£

Results

Stamp Duty To Pay:

Effective Rate:

Tax Band % Taxable Sum Tax
Similar Properties

Get an instant online valuation

Find out how much your property is worth