Oakfield Avenue, Eaglescliffe

Under Offer
Guide Price £245,000 (Freehold)

4 2 2
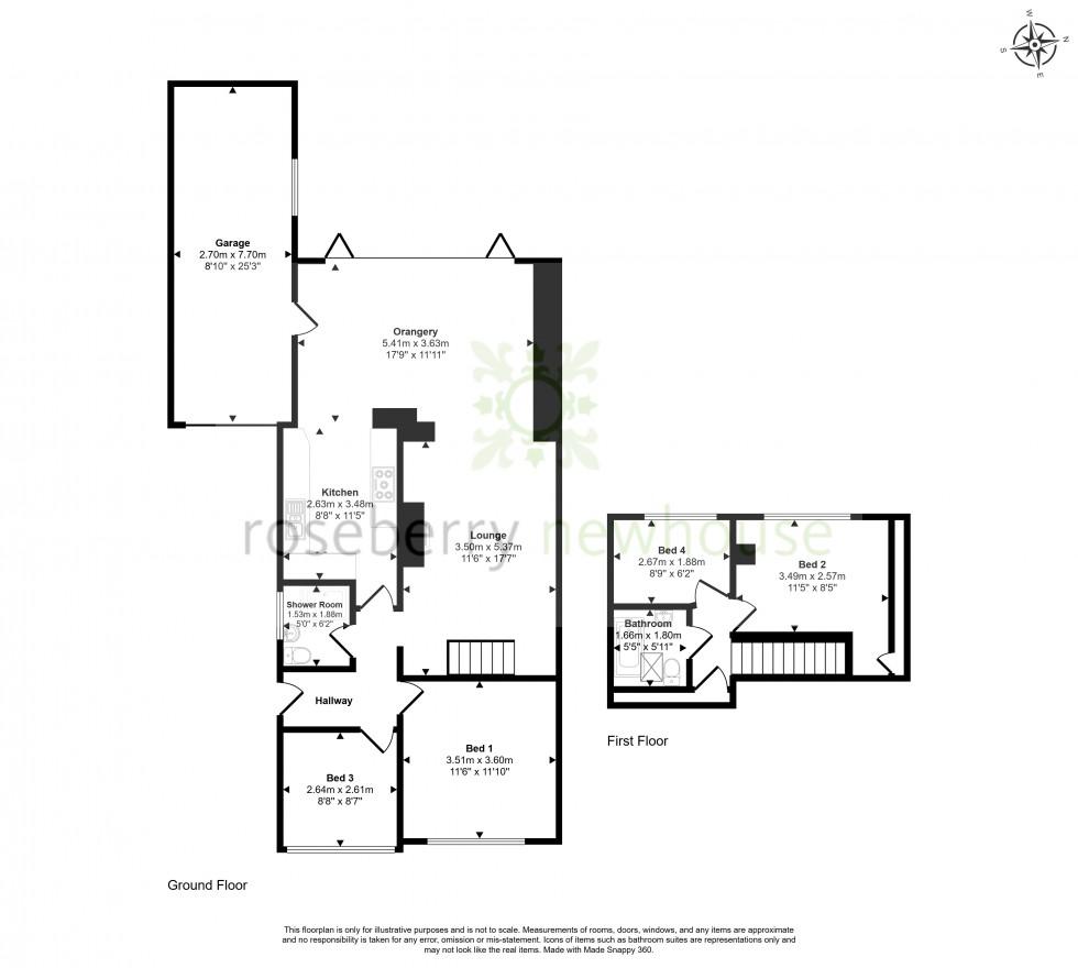
Positioned within this highly sought-after residential location, on the ever-popular Orchard Estate in Eaglescliffe, lies this exceptional, fully refurbished and extended four bedroom dormer semi-detached property. Ideally suited for families and professionals alike, the property is conveniently placed for highly regarded primary and secondary schooling, a nearby local shopping arcade with active community hall, excellent bus routes, Allen’s West rail station, a larger mainstream supermarket and is only a short commute into the vibrant Yarm High Street. Upon inspection, viewers will find a welcoming home, having been refurbished and extended by the current owners, the result being a superbly balanced family home offering generous and versatile accommodation set over two floors. The living accommodation comprises; a welcoming entrance hallway, providing access to the main living areas, ground floor bedrooms and bathroom. The main living room is a spacious and light-filled reception space, ideal for everyday family living and entertaining. Beautifully proportioned, it comfortably accommodates a range of furnishings, log burner and flows seamlessly into the rear extended area of the home. To the rear of the property lies the extended orangery, a fantastic additional space with glass atrium roof and bi-folding doors out onto the garden, perfect as a family snug, playroom, dining or sitting room. This space benefits from excellent natural light and creates a wonderful connection between indoor and outdoor living. The kitchen is stylishly appointed and thoughtfully laid out, offering ample worktop and storage space. Designed for both practicality and social use, it sits at the heart of the home with easy access to the living areas, making it ideal for modern family life. Two well-proportioned bedrooms on the ground floor, offer flexibility for guests, multi-generational living, or home office use if required. Completing the ground floor is a contemporary family shower room, fitted with modern sanitary ware and finished to a contemporary high standard. The first floor opens onto a small landing area leading to two further bedrooms and a three piece bathroom. The principal bedroom is a generous double room with excellent head height for a dormer-style layout, providing a calm and comfortable retreat with ample space for bedroom furniture. The fourth bedroom is ideal for children, guests or as a dedicated home office. A modern first-floor bathroom serves this level, finished in a clean, contemporary style with roll top bath and is perfectly positioned for family convenience. Externally, the property continues to impress. To the front are low-maintenance lawned gardens, complemented by a tandem-length block-paved driveway extending from the front to the side of the property, leading to an extended larger than average garage with up-and-over door, providing excellent off-street parking, convienient storage or workshop. To the rear lies a fence-enclosed westerly facing garden, predominantly laid to lawn and enjoying afternoon and evening sun. A dedicated children’s play area laid to bark chippings sits alongside a timber decked terrace, creating an ideal space for outdoor entertaining, relaxation and family enjoyment. In summary this is a truly superb family home, offering generous and flexible accommodation, finished to a high standard throughout, in a location that continues to be in consistently high demand. Early viewing is strongly recommended to fully appreciate the quality, space and lifestyle on offer.
  • Council Tax Band: B
  • Extended four bedroom dormer semi-detached house
  • Much Improved Contemporary Interiors
  • Sought-after Setting on Orchard Estate
  • Stunning orangery with glass roof and bi-fold doors
  • Lounge with Log Burner ideal for family living
  • Modern fitted kitchen with ample storage and workspace
  • Two bathrooms including ground floor family bathroom
  • Westerly facing enclosed rear garden with decking
  • Tandem block paved driveway plus extended garage
  • Close to excellent schools, rail station, shops and Yarm
Floorplan for Eaglescliffe, Stockton-on-Tees
EPC Graph for Eaglescliffe, Stockton-on-Tees

Calculate Your Stamp Duty

£

Results

Stamp Duty To Pay:

Effective Rate:

Tax Band % Taxable Sum Tax
Similar Property

Get an instant online valuation

Find out how much your property is worth