Race Terrace, Great Ayton

Under Offer
Offers Over £250,000 (Freehold)

2 1 1
Tucked away in the heart of Great Ayton, just a short stroll from the High Street and its array of amenities, this charming Grade II listed stone-built cottage offers period character blended with modern living, and is offered to the market with no onward chain.

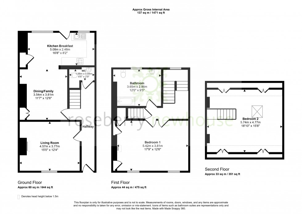
Stepping inside, the cottage opens into a welcoming living room where a period fireplace forms the focal point, offering warmth and atmosphere. A versatile family room features built-in cupboards within the chimney recess and opens into a light and airy dining kitchen, fitted with integrated appliances and arranged to create a sociable, open-plan space ideal for everyday living and entertaining alike.

Upstairs, the first floor accommodates a spacious principal bedroom with another beautiful period fireplace, formerly two separate rooms and now offering generous proportions and flexibility. A modern bathroom with contemporary fittings serves the floor, while stairs lead to a delightful attic room, complete with exposed beams and a Velux window drawing in natural light—an ideal study, studio or occasional bedroom.

To the rear of the property lies a traditional flagged courtyard garden, offering a private space to sit and enjoy the surroundings. A rare opportunity to acquire a characterful home in a central and sought-after village setting.
  • Council Tax Band: C
  • Stone built cottage
  • Grade II Listed
  • No onward chain
  • Close to the High Street and amenities
  • Gas central heating
  • Living room with period fireplace
  • Family room open plan to a modern kitchen diner
  • Courtyard rear garden
  • Large master bedroom (formerly two rooms)
  • Modern bathroom
  • Attic room with beams
  • Freehold
Floorplan for Great Ayton, Middlesbrough, North Yorkshire
EPC Graph for Great Ayton, Middlesbrough, North Yorkshire

Calculate Your Stamp Duty

£

Results

Stamp Duty To Pay:

Effective Rate:

Tax Band % Taxable Sum Tax
Similar Properties

Get an instant online valuation

Find out how much your property is worth