Tunstall Lane, Nunthorpe

For Sale
Offers Over £900,000 (Freehold)

4 2 3
A rare and exciting equestrian development opportunity in the heart of North Yorkshire.

Set against the majestic backdrop of the Cleveland Hills and surrounded by far-reaching countryside views, Tunstall Grange represents a truly unique proposition. This detached barn with attached livery occupies an enviable rural position, offering both a peaceful lifestyle and remarkable commercial potential.

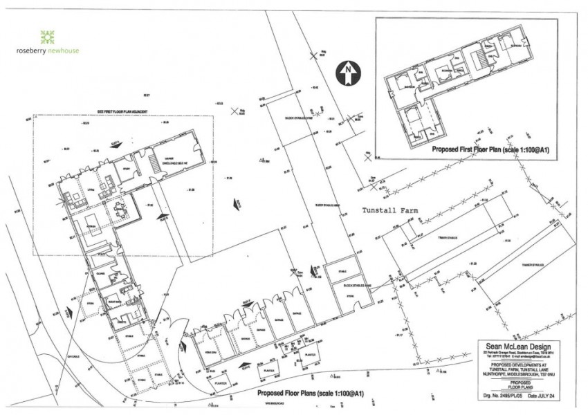
Planning consent (Ref: ZB25/00571/FUL) has been granted to convert the existing structure into a stunning 4,000 sq. ft. residence, carefully designed to embrace its agricultural heritage while delivering the comforts of modern living. The barn will sit within a 0.3-acre plot and enjoy a generous 1/3-acre private garden. Conversion works have commenced, with the build approximately 40% complete and materials already on site for continuation.

The site as a whole spans 29 acres, currently supporting a well-established livery business. Complementing this are extensive equestrian facilities including a 42m x 22m indoor arena, an outdoor arena measuring 22m x 20m, and the capacity for up to 50 stables. Additional planning permission has been granted for the development of further stabling, paving the way for a thriving equestrian enterprise or private training facility. Furthermore, there is half an acre of dedicated parking – an essential for commercial use or events.

For those seeking to expand their rural holding, an additional 22 acres of adjoining land is available by separate negotiation, offering flexibility for agricultural, leisure, or business use.

This is an exceptional lifestyle and investment opportunity in one of the region’s most desirable countryside locations, with easy access to Nunthorpe, Stokesley and the wider Tees Valley. Whether your vision is to create a prestigious home, build a dynamic equestrian business, or both, Tunstall Grange is ready to deliver on every front.

Freehold
  • Equestrian opportunity
  • Livery business with up to 50 stables
  • Detached barn conversion of 4000 sq ft
  • 40% converted
  • Additional 22 acres available
  • Indoor and outdoor arenas
  • Ample parking
  • Sits in 29 acres
  • Four car garage
  • Rural location
  • Panoramic views of the Cleveland Hills
  • Freehold

Calculate Your Stamp Duty

£

Results

Stamp Duty To Pay:

Effective Rate:

Tax Band % Taxable Sum Tax

Get an instant online valuation

Find out how much your property is worth