Richmond Place, Thornaby

Let
£900 PCM

4 2 1
PROPERTY NOW LET!



Located within a pleasant cul-de-sac setting, this four-bedroom semi-detached property offers convenient access to the Town Centre, local schools, and supermarkets.



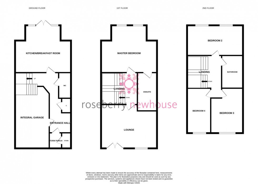
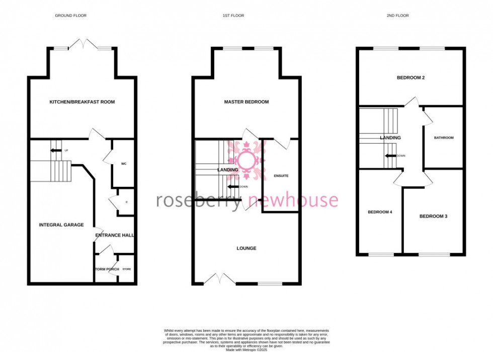
The ground floor comprises an entrance hall, a modern kitchen, with French doors opening onto the rear enclosed garden. On the first floor, you will find a spacious living room and one double bedroom complete with an en-suite. The top floor provides three further bedrooms – two of which are singles – along with a contemporary family bathroom.



To register your early interest, please contact the lettings team on 01642 927288.
  • Council Tax Band: C
  • Four bedrooms
  • Semi-Detached Town House
  • Bathroom & En-suite
  • Groundloor WC
  • Internal garage access.
  • Council Tax Band 'C'
  • Tenancy length 12 months
Floorplan for Thornaby, Stockton-on-Tees, Durham
EPC Graph for Thornaby, Stockton-on-Tees, Durham

Get an instant online valuation

Find out how much your property is worth