Sinderby Lane, Nunthorpe

For Sale
Guide Price £525,000 (Freehold)

5 3 2
Set within the sought-after Grey Towers Village by Barratt Homes, Sinderby Close presents a substantial five-bedroom detached family home offered with no onward chain. The house enjoys a pleasant outlook across newly planted green space and sits within easy reach of Nunthorpe’s shops, schools and commuter links, making it a superb choice for busy family life.

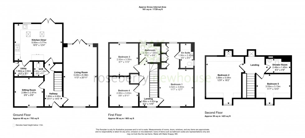
A broad entrance hall sets an inviting tone and leads to a trio of versatile living areas. The formal living room provides an elegant retreat, while a separate sitting room is ideal as a playroom, snug or home office. To the rear, the heart of the home is a superb vaulted kitchen diner—light-filled and contemporary—with integrated appliances and French doors opening directly to the garden. A practical utility room and ground-floor cloakroom complete the ground level.

Arranged over three floors, the sleeping accommodation is both generous and well planned. The first floor hosts a principal bedroom with dressing area and sleek en-suite, alongside two further bedrooms and a stylish family bathroom. The top floor offers two additional double bedrooms served by a modern bathroom—perfect for teenagers, guests or a quiet work-from-home zone.

Outside, a double driveway with EV charger sits in front of a double garage, providing excellent storage and parking. The landscaped rear garden has been designed for low-maintenance enjoyment, featuring a large tiled terrace for al-fresco dining and a level lawn bordered by planting.

A contemporary, chain-free home in a prime Nunthorpe setting—ready to move into and perfectly tailored to modern family living.
  • Council Tax Band: G
  • Detached family home
  • Five bedrooms
  • Gas central heating
  • Vaulted kitchen diner
  • Three bathrooms and WC
  • Living room and sitting room
  • Landscaped rear garden
  • Double garage & driveway with EV Charger
  • No onward chain
  • Freehold
Floorplan for Nunthorpe, Middlesbrough
EPC Graph for Nunthorpe, Middlesbrough

Calculate Your Stamp Duty

£

Results

Stamp Duty To Pay:

Effective Rate:

Tax Band % Taxable Sum Tax

Get an instant online valuation

Find out how much your property is worth